
”Siikajoelle näin viimein joudutaan,
jäljell’ isänmaast’ on jäinen kolkka vaan,
jää jo saaliiks sekin, ei voi enää estää;
mutta joskus vahva murtuu, heikko kestää.”
jäljell’ isänmaast’ on jäinen kolkka vaan,
jää jo saaliiks sekin, ei voi enää estää;
mutta joskus vahva murtuu, heikko kestää.”
J.L. Runeberg, Vänrikki Stoolin tarinat

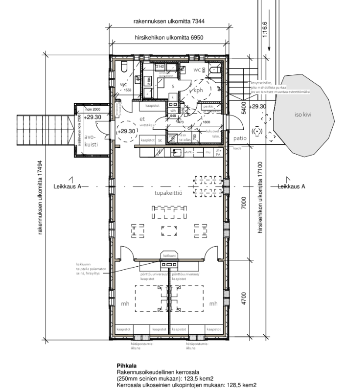
Pihkalan pohjapiirros
